ReRender

공동 주거 커뮤니티,
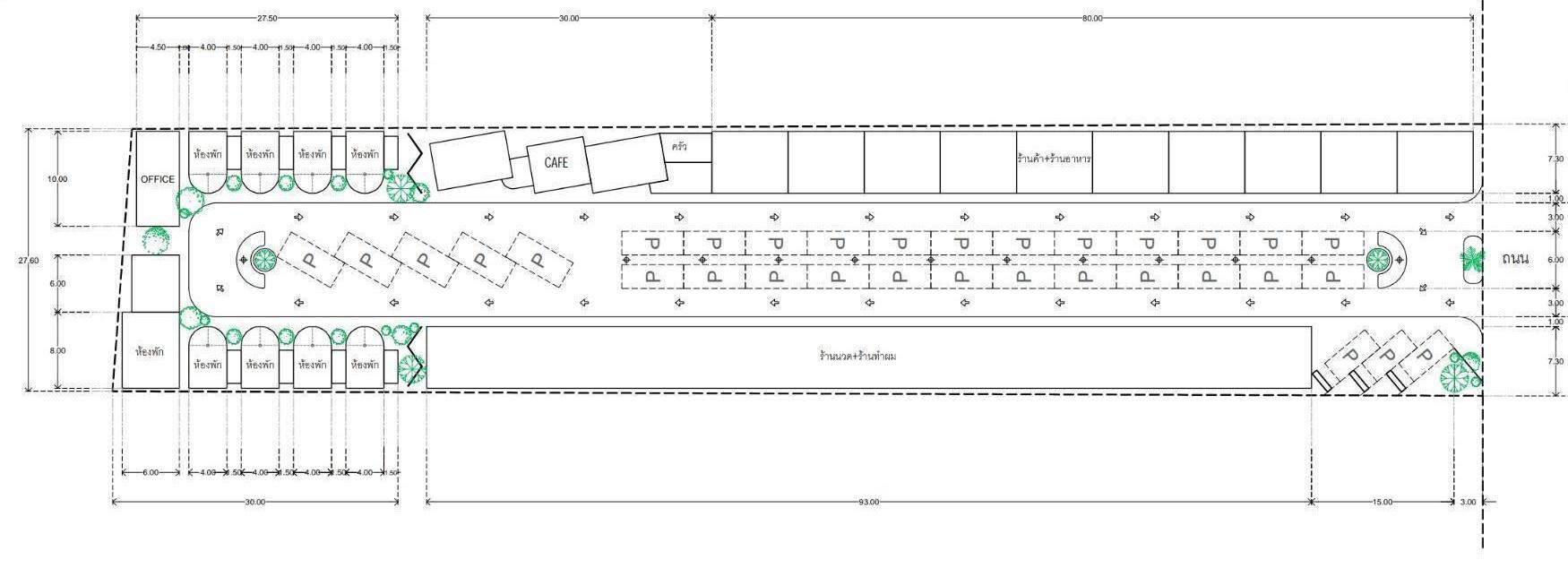
슬릭 인터내셔널
Original
Source Image
Uploaded
Generated(2128x768)
source
2.07%
Result Images
Result Images
Result Images

An incredibly lifelike, richly detailed, photorealistic overhead floorplan photo of a sleek, modern co-housing community, captured on a clear spring midday. The scene is illuminated by bright, even sunlight, creating a clean and airy atmosphere. The composition showcases a long, rectangular complex with distinct sections for offices, cafes, and residential units, all interconnected by paved pathways and parking areas. Lush green foliage is strategically placed throughout the complex, softening the architectural lines and indicating a well-maintained landscape. The parking spaces are clearly delineated, with some angled for easier access, hinting at an efficient and practical design for the residents. The overall impression is one of organized urban living designed for comfort and community.


Use the extensionSketchUp
Follow usInstagramYouTubeLinkedIn
Join the discussionReddit