ReRender

단독 주택,
지중해 빌리지
Original
Source Image
Uploaded
Generated(1656x768)
source
4.27%
Result Images
Result Images
Result Images

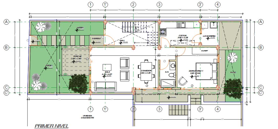
An incredibly lifelike, richly detailed, photorealistic floorplan photo of a single-family home set in a Mediterranean village. The scene is illuminated by midday spring light, creating a bright and clear atmosphere. Captured with a wide-angle lens, emphasizing the flow and spaciousness of the interior layout, the photograph displays realistic materials assigned to the finishes. The floors throughout the main living areas, bedrooms, and hallways are rendered as warm, natural-looking laminate wood, showcasing its subtle grain and matte finish. In contrast, the kitchen and bathroom floors are depicted as durable, easy-to-clean tile with a slight sheen. The exterior areas surrounding the house immediately transition to cool-toned flagstone paving, suggesting a timeless, natural feel. The porch area is distinctly finished with variegated flagstone, adding a touch of rustic elegance. Lush green grass covers the designated garden spaces, vibrant and well-maintained. The composition offers a complete aerial view of the "Primer Nivel" (First Level), meticulously detailing each room, including the "Sala" (Living Room) with comfortable sofa and seating arrangements, the "Comedor" (Dining Room) set with a table and chairs, a "Cocina" (Kitchen) equipped with cabinetry and appliances, a "Lavanderia" (Laundry Room), a "Dormitorio 1" (Bedroom 1), a "Baño" (Bathroom), and ample "Jardin" (Garden) and "Patio" (Patio) areas. The overall perspective provides a clear understanding of the home's layout, flow, and the interplay between indoor and outdoor living spaces, with crisp detail and precise architectural lines.


Use the extensionSketchUp
Follow usInstagramYouTubeLinkedIn
Join the discussionReddit