ReRender

단독 주택,
캔틸레버 현대
Original
Source Image
Uploaded
Generated(1088x768)
source
3.83%
Result Images
Result Images
Result Images

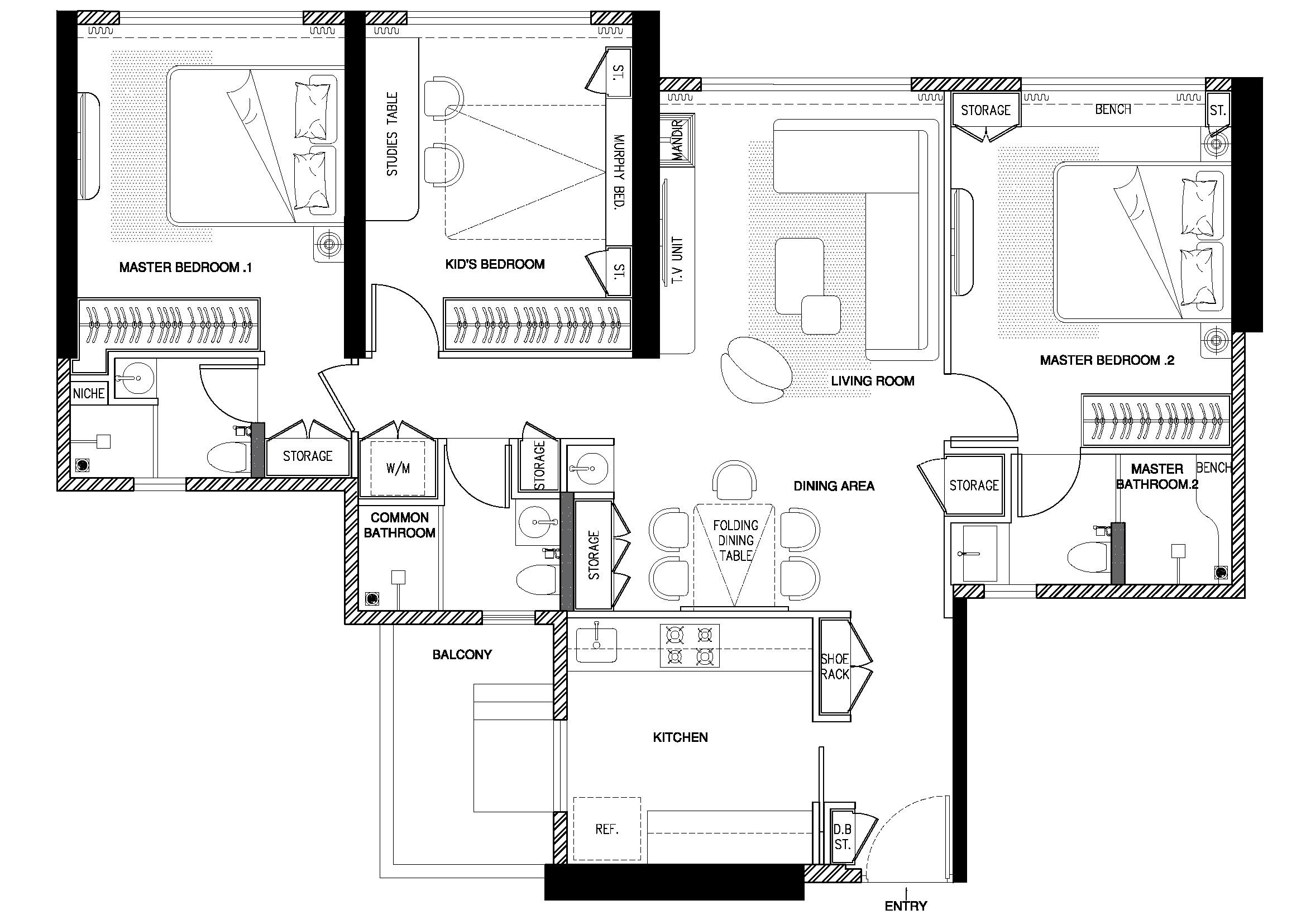
An incredibly lifelike, richly detailed, photorealistic floorplan photo of a modern single-family home, featuring a cantilevered contemporary design. The scene is illuminated by a bright, even light, creating a clean and inviting atmosphere. The main living areas, including the living room, dining area, and kitchen, are adorned with sleek, large-format badge tiles, clearly showing their precise joint lines that contribute to the sense of spaciousness and order. In stark contrast, all bathroom floors are finished in pristine white marble, its veining subtly visible, exuding an air of luxury and pristine cleanliness. The layout thoughtfully separates private and public spaces, with two master bedrooms, one kid's bedroom, a common bathroom, and ample storage solutions integrated throughout. The master bedrooms are furnished with large beds, while the kid's bedroom includes desks and murphy beds, highlighting its versatility. The living room features a comfortable sectional sofa and additional seating, and the dining area is set with a folding table surrounded by chairs. The kitchen is well-equipped with a reference area and adjacent entry and shoe rack. The overall composition is balanced and functional, offering a clear visualization of the home's flow and sophisticated finishes, captured as if from a bird's-eye view with a wide-angle lens to showcase the entire expanse.


Use the extensionSketchUp
Follow usInstagramYouTubeLinkedIn
Join the discussionReddit