ReRender

단독 주택,
슬릭 인터내셔널
Original
Source Image
Uploaded
Generated(768x832)
source
4.19%
Result Images
Result Images
Result Images

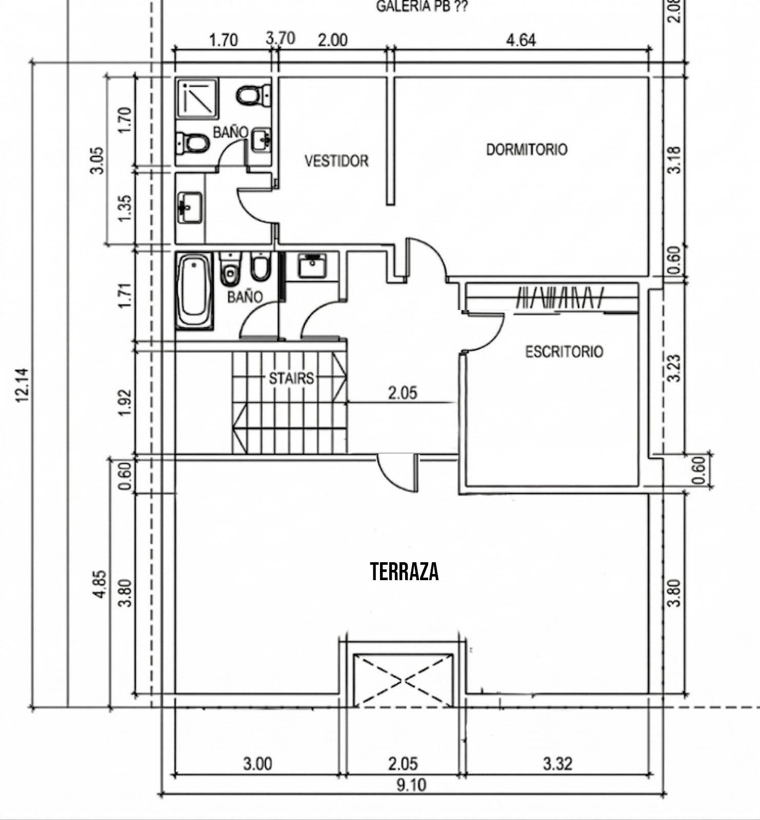
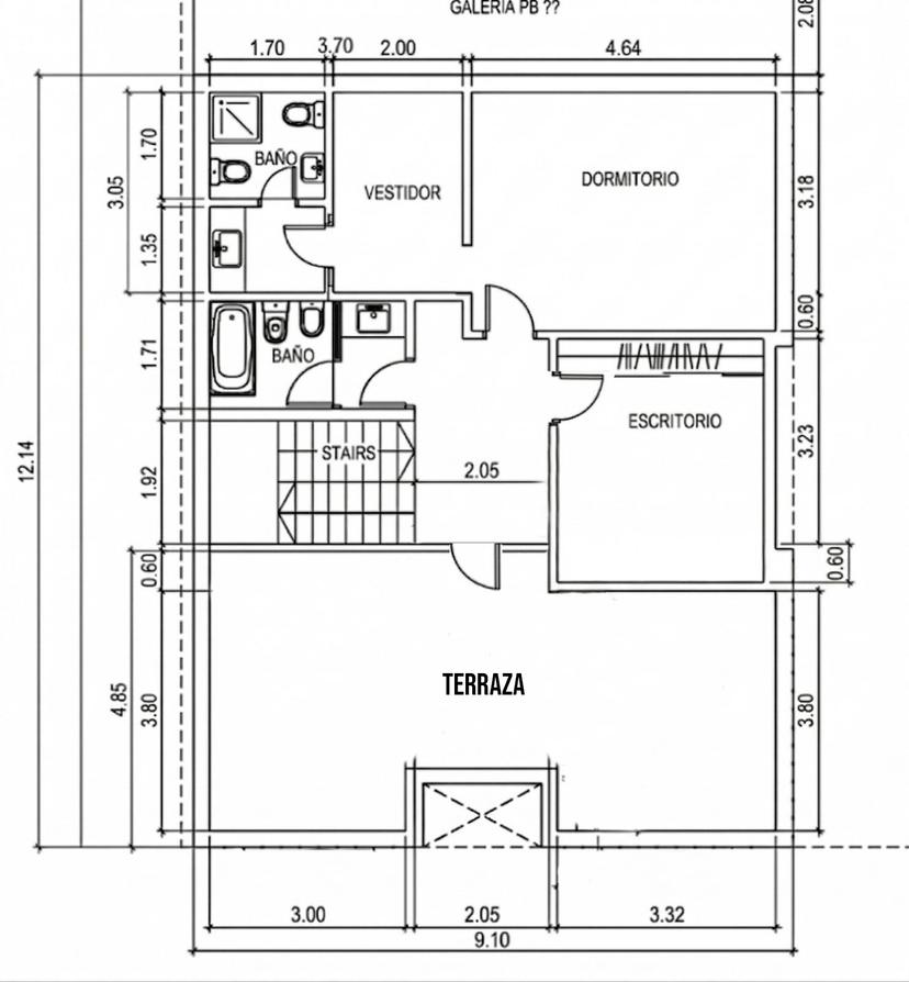
A detailed, photorealistic floor plan view of a sleek, modern single-family home. The scene is illuminated by a bright, even light, highlighting the clean lines and functional layout of the interior. Captured with a wide-angle lens, the photograph emphasizes the expansive feel of the various rooms, including two bathrooms, a dressing room, a bedroom, and an office, all connected by well-defined hallways and a central staircase. The floor is a polished concrete, showing a subtle texture, while the walls are stark white, creating a minimalist aesthetic. The overall composition is precise and geometric, showcasing the architectural design with a high degree of clarity. The "terraza" area, visible in the lower portion, offers a glimpse of an outdoor space, suggesting a connection between indoor and outdoor living. The photographic quality is exceptionally sharp, with no discernible depth of field, allowing every detail of the plan to be in focus.


Use the extensionSketchUp
Follow usInstagramYouTubeLinkedIn
Join the discussionReddit